Naše práce
Služby
O nás
Kontakt
Menu
X
Naše práce
Služby
O nás
Kontakt
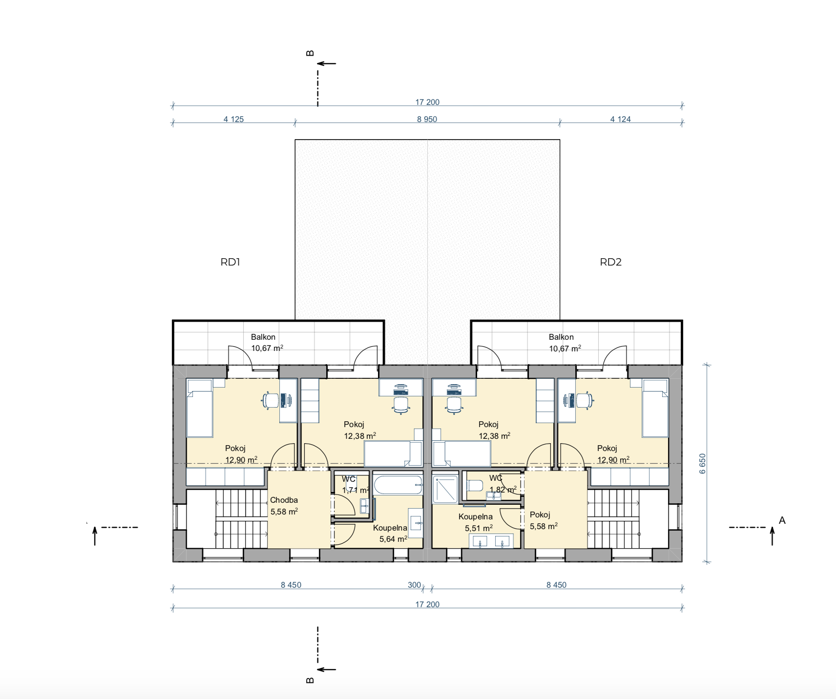
Dvojdům Brno – venkov
Typ stavby
Rodinné domy
Prohlédněte si další
Rodinné domy
Rodinný dům Vyškov
Rodinný dům Vysoké Mýto
Rodinný dům Soběšice
Rodinný dům Brno – venkov
Rodinný dům Brno – rekonstrukce
Rodinný dům Brno
líbí se vám naše práce?
Kontaktujte nás a pobavíme se s čím vám můžeme pomoci.
Kontakt