Naše práce
Služby
O nás
Kontakt
Menu
X
Naše práce
Služby
O nás
Kontakt
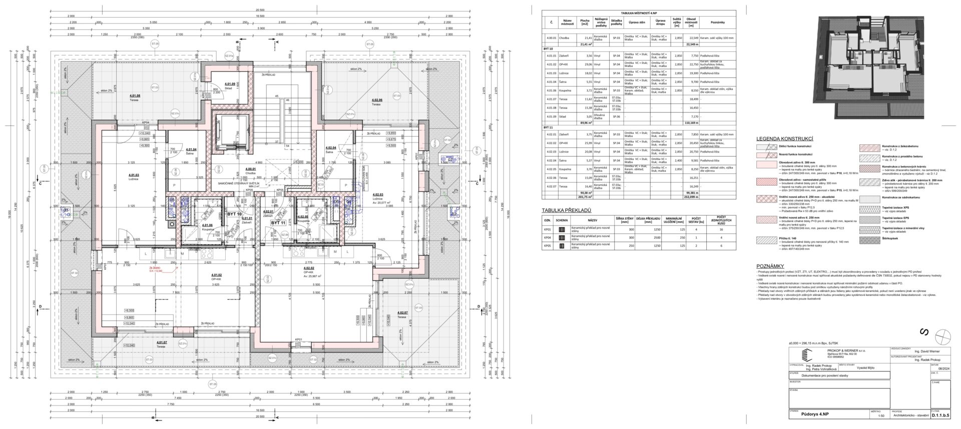
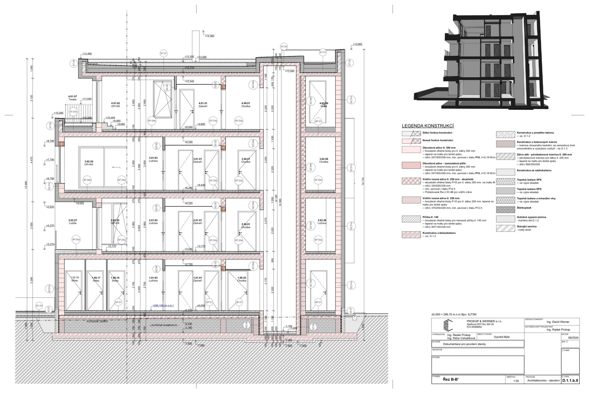
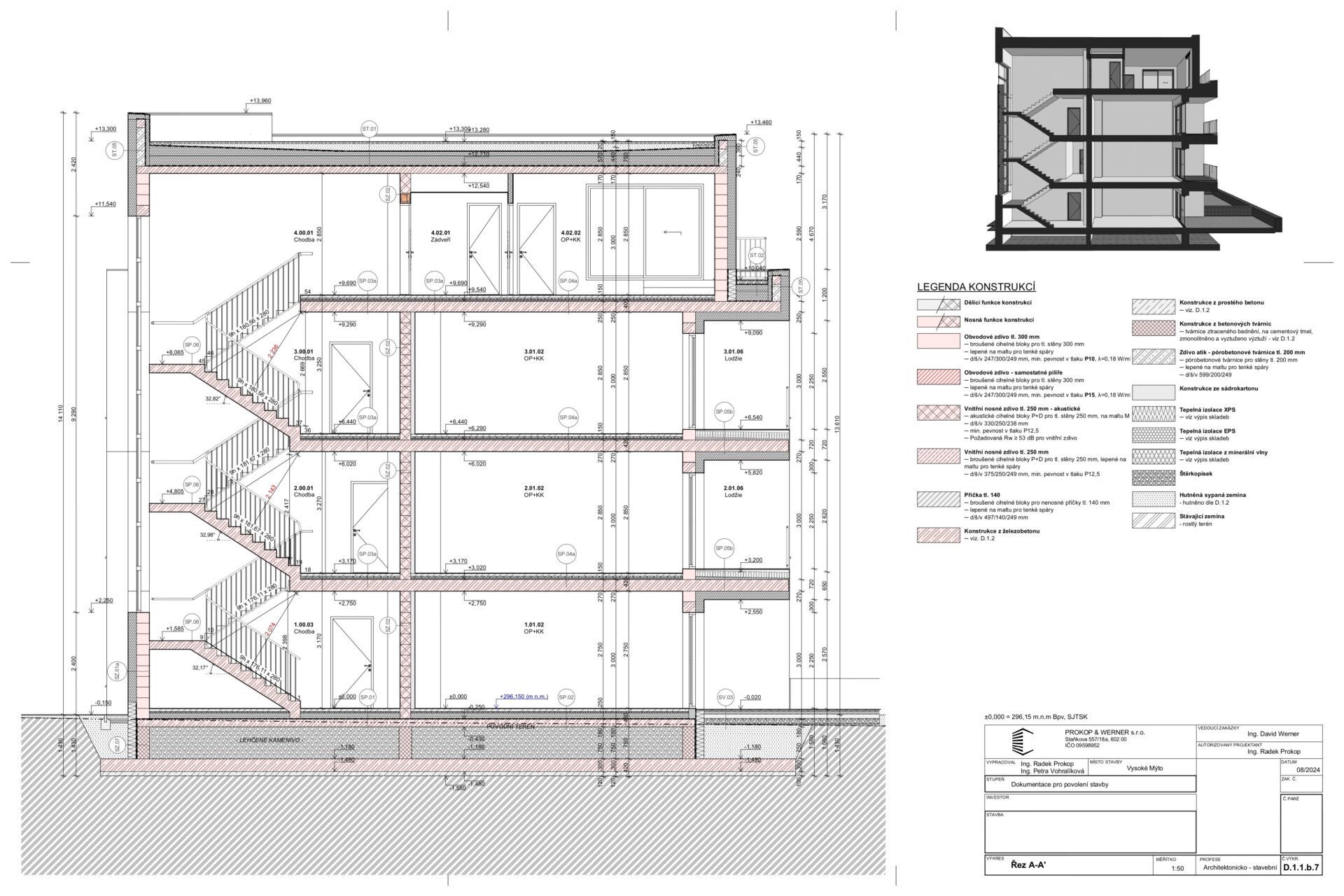
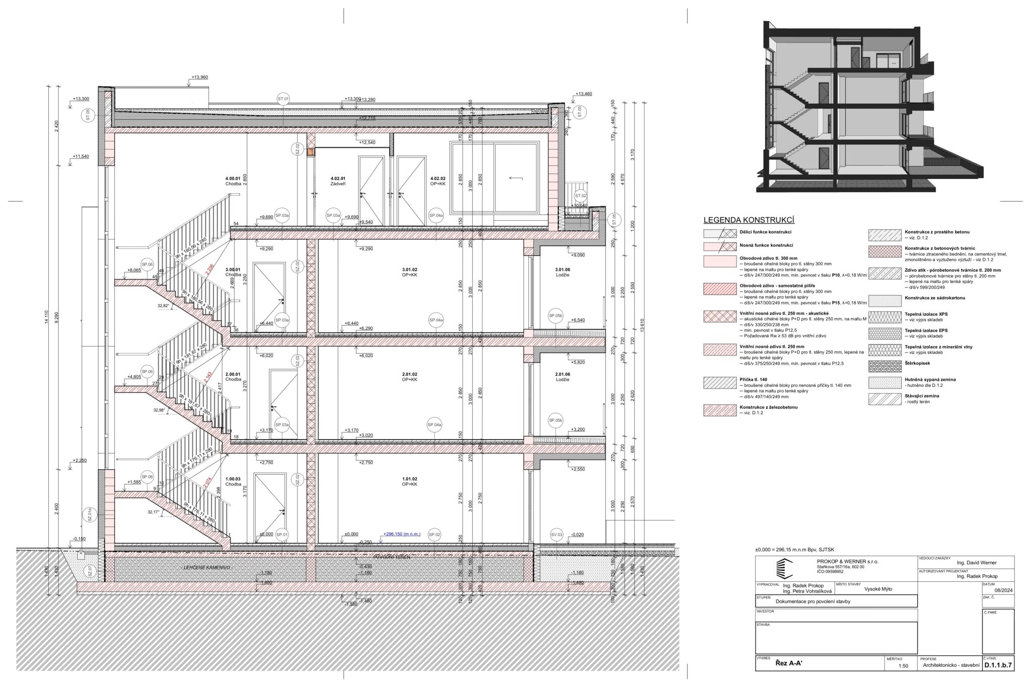
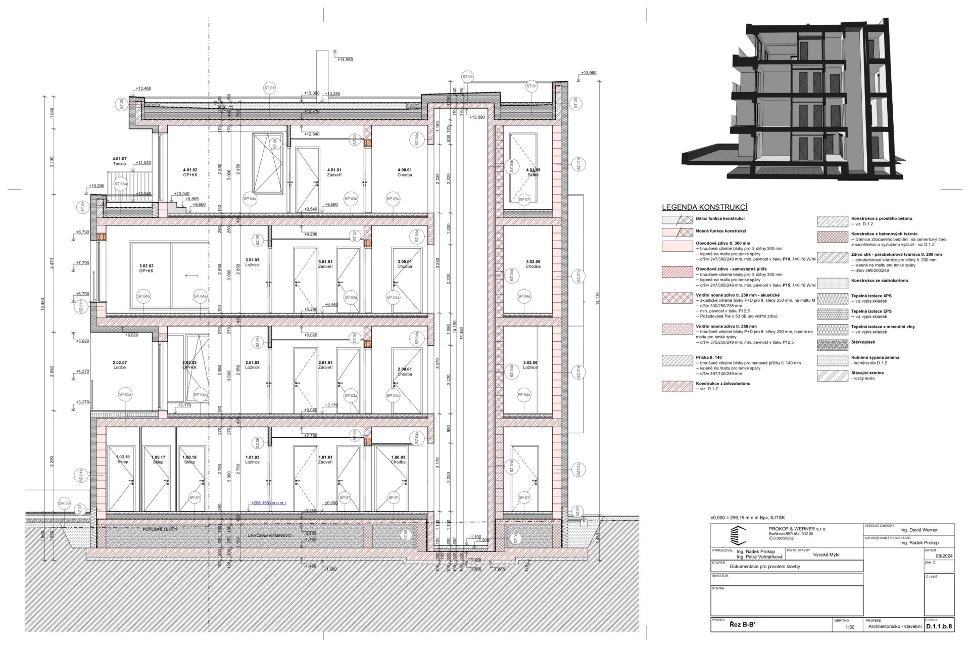
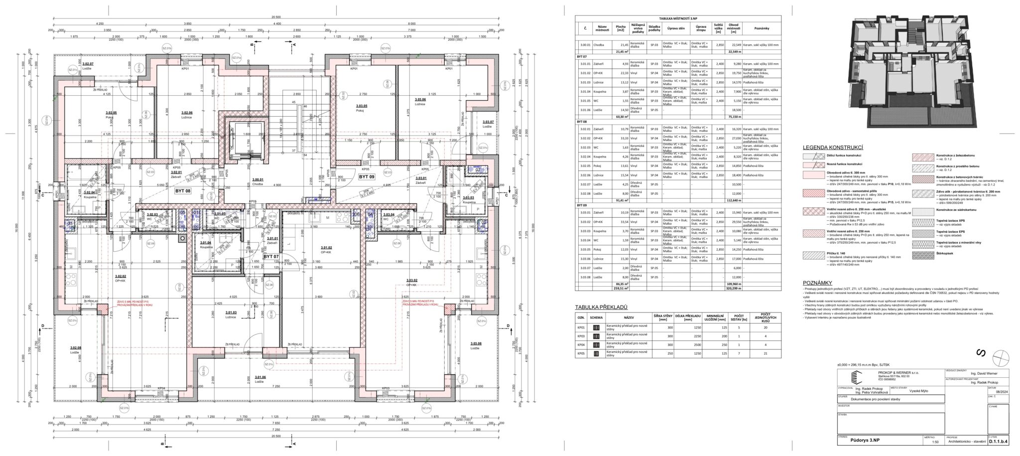
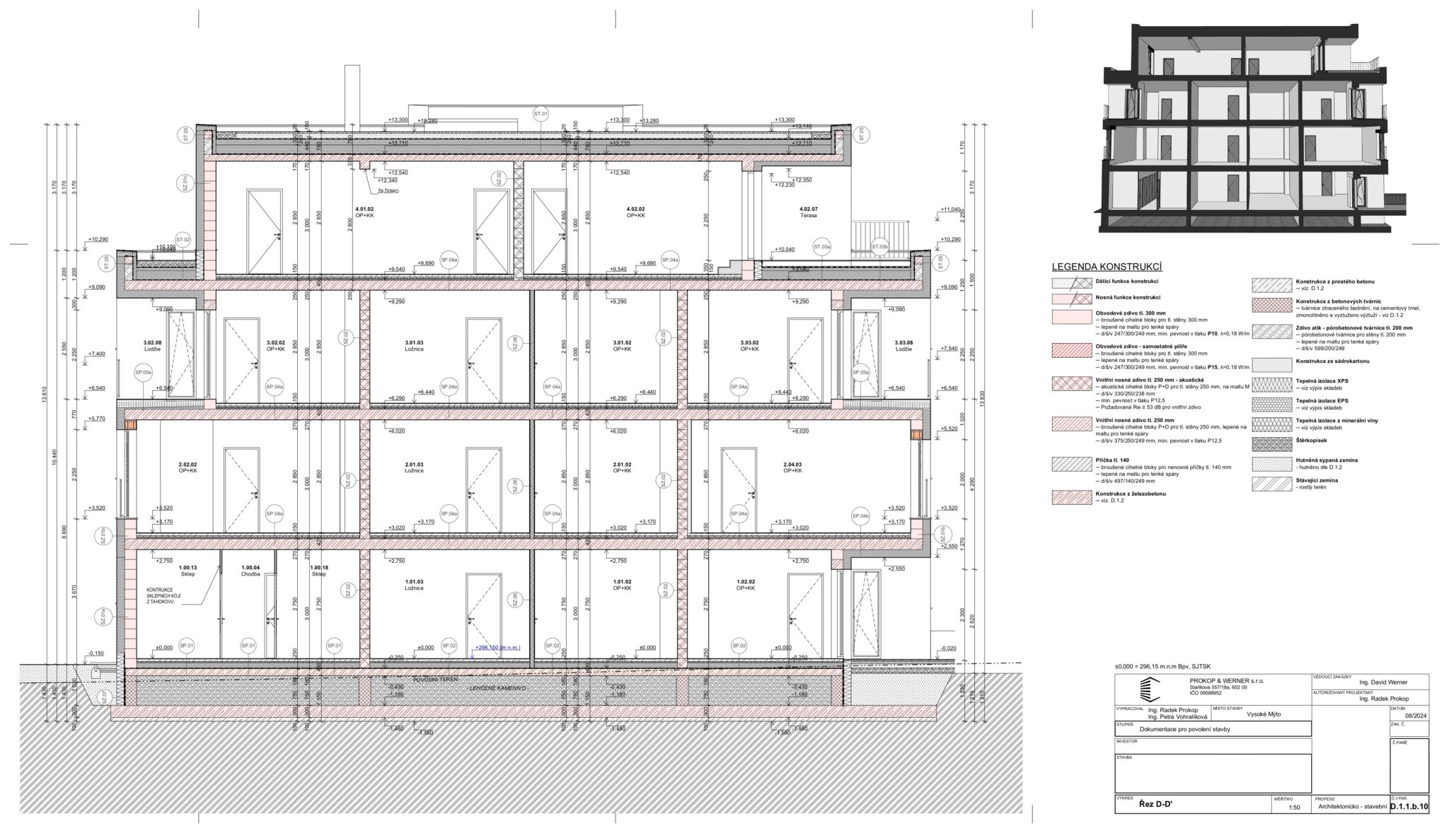
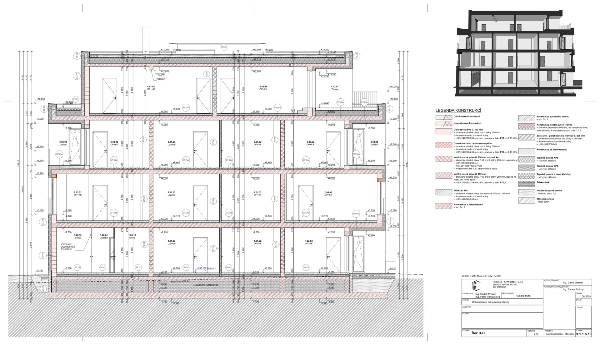
Bytový dům Vysoké Mýto
Typ stavby
Bytové domy
Prohlédněte si další
Bytové domy
Bytový dům Řečkovice
Bytový dům Královo Pole
Bytový dům Brno-sever
Bytový dům Škrochova
Polyfunkční objekt Židenice
Bytový dům Brno – sever
líbí se vám naše práce?
Kontaktujte nás a pobavíme se s čím vám můžeme pomoci.
Kontakt